ORA: Hiša v ruševini
ponedeljek, 27. februar 2023
Nekdanja kmetija na češkem podeželju je bila v 20. stoletju preurejena v žitno kaščo. Ko jo je pred nekaj leti kupila nova lastnica, se je močno dotrajana hiša znova preobrazila.




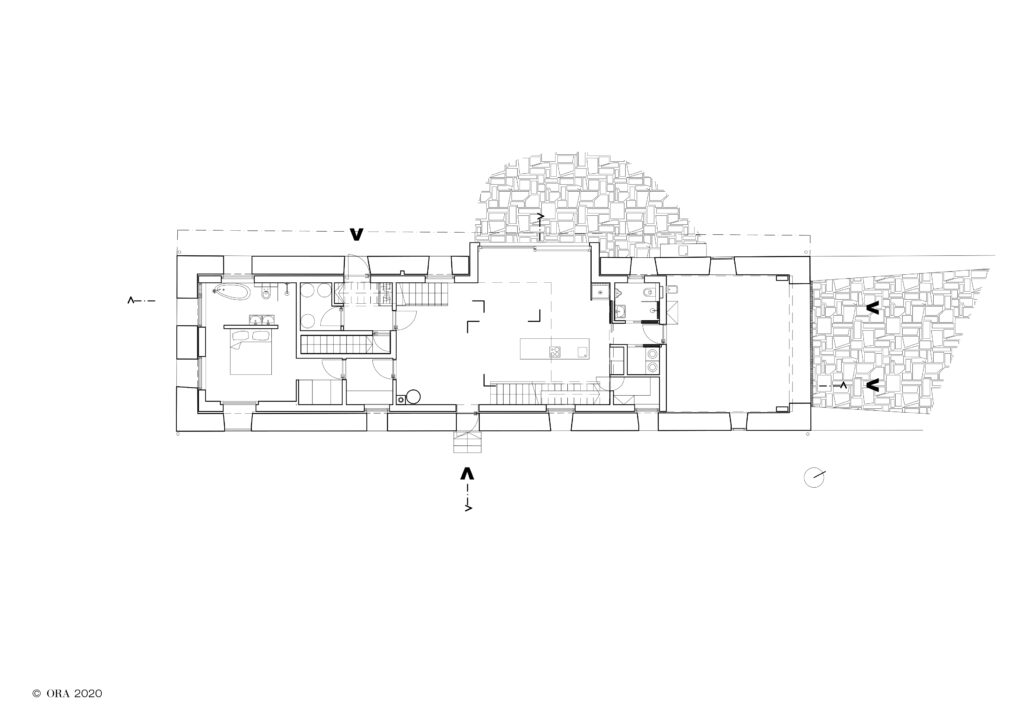
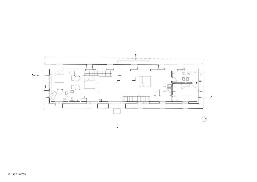
Kljub drastičnim spremembam, prezidavam in postopnemu odnašanju vseh vrednih materialov in dragocenosti iz hiše, ta ni izgubila nekdanjega sijaja, povedo arhitekti. Ob prvem obisku lokacije so analizirali stavbni volumen z njegovimi nišami in odprtinami, obenem pa preverili, v kakšnem stanju je konstrukcija. Analiza je pokazala, da na hiši pravzaprav ni mogoče ohraniti ničesar razen zunanjega ovoja in strešne konstrukcije, torej gole lupine, ki je bila zaradi izpostavljene opeke tudi izjemno likovno zanimiva. Da bi ohranili zgodovinsko pričevalno podobo stavbe, obenem pa zadostili sodobnim bivalnim standardom, so se arhitekti zato odločili, da postavijo novo hišo v obstoječi konstrukciji.




Nova notranja plast je tako odlično toplotno in zvočno izolirana, konstrukcijsko pa je povsem ločena od zunanje, opečne plasti. Arhitekti so se odločili večino še uporabnega materiala iz hiše uporabiti na novo – zdravi obstoječi leseni tramovi so tako postali del nove lesene notranje konstrukcije. Vrt okoli hiše je zasnovan odprto, brez jasno zarisane meje med ohišnico in okoliškimi travniki. Krajinska arhitektka je po vzoru še delujočih okoliških domačij, ki se ponašajo z bujnimi sadovnjaki, okoli hiše zasadila stare sorte jablan.




Hiša v ruševini je manifest novega odnosa do starih hiš, zapišejo arhitekti iz češke pisarne ORA. Da bi stavbo prilagodili sodobnim zahtevam po udobju in energetski varčnosti, nam ni treba žrtvovati avtentičnosti ali pričevalne vrednosti zgodovinske arhitekture.




Arhitektura: ORA
Avtorji: Jan Hora, Barbora Hora, Jan Veisser
Soavtor: Tomáš Pospíšil
Lokacija projekta: Jevíčko, Zadní Arnoštov, Češka
Leto izvedbe projekta: 2020
Površina projekta: 250m2
Krajinska arhitektura: Štěpánka Černá
Fotografije: BoysPlayNice