Septembre Architecture: Sereine

Septembre Architecture: Sereine

Prenovljena kmetija na francoskem podeželju

ponedeljek, 08. november 2021

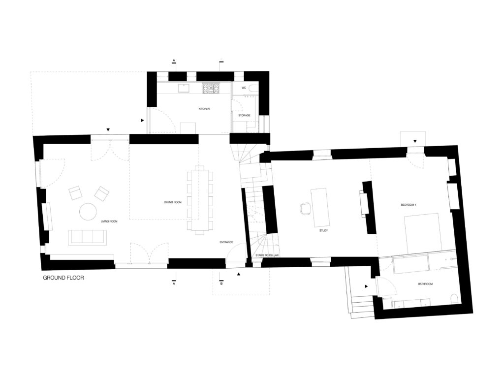
Arhitekti so si za cilj pri tem projektu zadali to, da bodo ohranili čimveč obstoječe konstrukcije v prvotnem stanju, hkrati pa objekt prilagodili novi rabi. Določeni elementi so ostali izvirni, drugje pa je podoba stavbe dopolnjena s sodobnimi naravnimi materiali, ki ohranjajo tipičen značaj francoske kmečke stavbe. V obstoječo konstrukcijo so bile vgrajene vse potrebne sodobne instalacije: talno ogrevanje, toplotna izolacija sten in strehe, dodana pa so bila tudi nekatera okna.

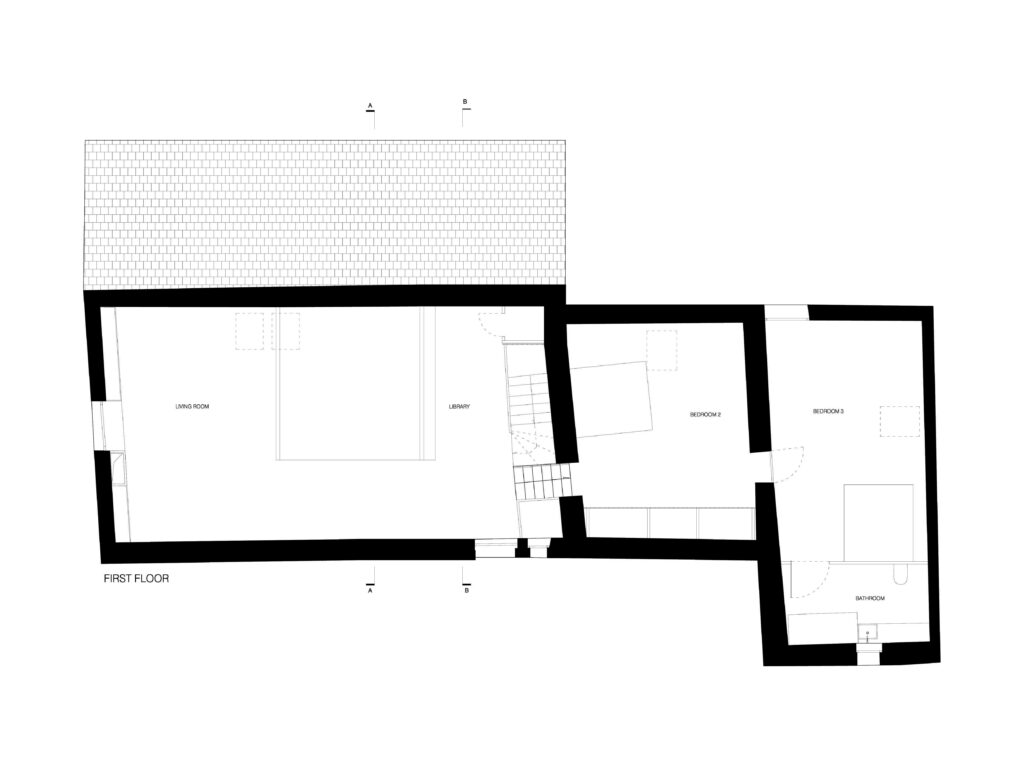
Hiša je programsko razdeljena na tri dele: odprto in dostopno kuhinjo z jedilnico in dnevno sobo, na otroške sobe z igralnico in na spalnico staršev s kopalnico. Notranji prostor je deloma dvovišinski, da deluje zračno in sodobno, obenem pa vizualno povezuje obe nadstropji. Tudi nova okna so nekoliko večja od predhodnih, v pritličju pa kar peterica steklenih vrat vabi k raziskovanju podeželske okolice. Prav posebno preobrazbo pa je doživel tudi stari kokošnjak, ki danes služi kot ločena hišica za goste z lastno kopalnico.

Arhitekti so v projekt vključili tudi lokalne obrtnike, ki so zagotovili vsa vrata, kuhinjske elemente, omare in police, pri tem pa uporabili hrastov les iz okolice. Nekateri uporabljeni materiali izvirajo iz stavbe, a so našli drugačno vlogo.


Ime projekta: Sereine

Arhitektura: Septembre

Vodja projekta: Lina Lagerstrom

Projektna ekipa: Memia Belkaid , Sami Aloulou, Dounia Hamdouch, Emilia Jansson

Lokacija: Loire, Francija

Leto izvedbe: 2013-2014

Površina: 240m2

Konstrukcija: kamnite stene, lesena streha

Fotografije: Linus Ricard

Radi bi vam poslali pismo!

Kajžin novičnik: praktični nasveti, zanimive nepremičnine, dobre prakse.